Q46溶解臭氧檢測儀如何安裝
所有Q46系列儀器安裝靈活。每個單元都包含一個支架,可以安裝到墻壁或管道上。在所有情況下,選擇一個易于進行校準的位置。還要考慮到在校準過程中可能有必要使用一個可以使用溶液的位置。為了充分利用高對比度顯示器,將儀器安裝在一個可以從不同角度和長距離觀看顯示器的位置。
將儀器放置在靠近傳感器安裝點的位置-這將使校準過程中容易訪問。傳感器到儀器的距離不應超過30米。然而,為了很大限度地提高信噪比,應盡可能使用很短的傳感器電纜。臭氧傳感器的標準電纜長度為7米。Q46顯示器的整體尺寸見圖1。

圖1- Q46機箱尺寸
墻壁或管道安裝
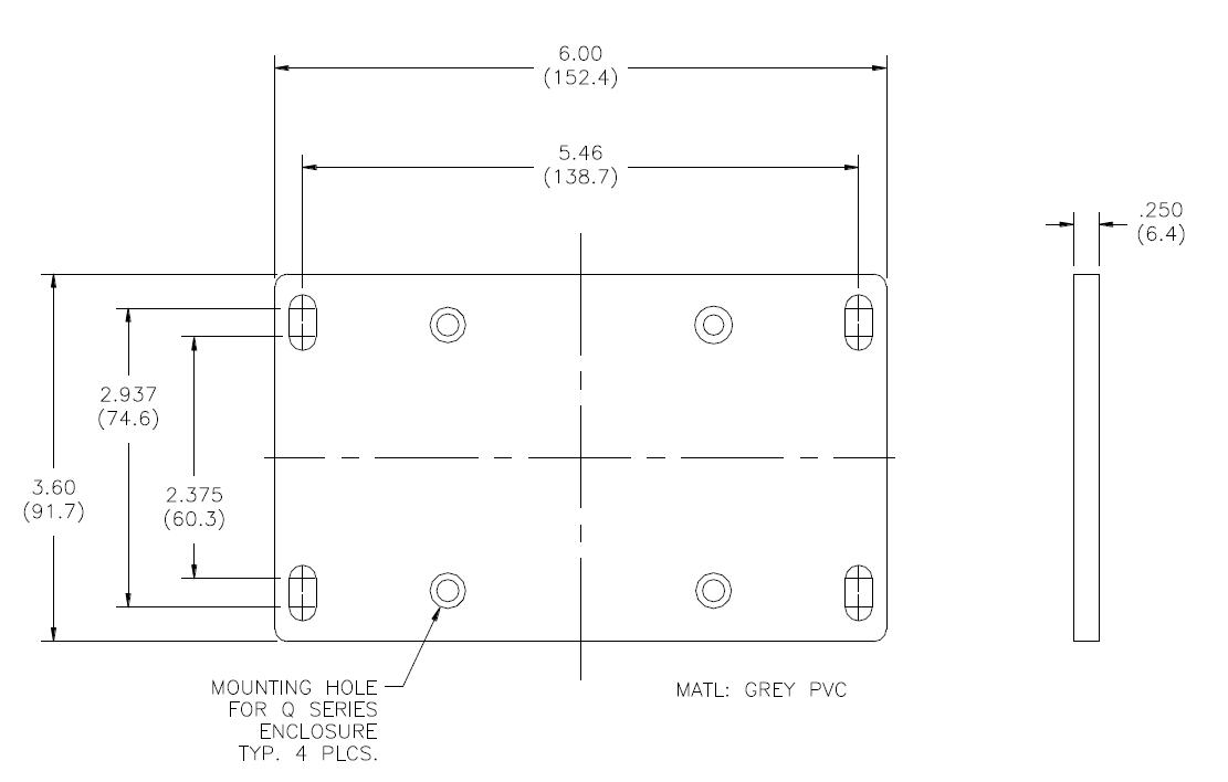
每個分析儀都提供一個帶連接螺釘的 PVC 安裝支架(尺寸見圖2)。 多用途支架使用四個平頭螺釘連接到機柜后部。 然后使用支架上的四個外部安裝孔將儀器固定在墻上(圖 6)。 這些孔開槽以容納兩種尺寸的 U 形螺栓,可用于管道安裝裝置(圖 7)。 插槽將容納為 1?“ 或 2” 管道設計的 U 形螺栓。 U 形螺栓的實際中心到中心尺寸顯示在圖紙中。 請注意,這些插槽適用于具有 ?-20 螺紋的 U 型螺栓。 1?” 管道 U 形螺栓(2” I.D. 間隙)可從 ATI 以 304 型不銹鋼制成,部件號為 47-0005。

圖 2 - 墻壁或管道安裝支架